Проект частного банного комплекса расположен: г. Москва, пос. Сосенское, деревня Летово, к.п. Бельгийская деревня, д.60
Проект комплекса частных строений: дом, баня, беседка, навес для 2м/м.
Проект реконструкции частного комплекса, дом, баня, гараж. Расположен в московской области д.Немчиновка
Проект двухэтажного дома
Проект готового двухэтажного тау хауса
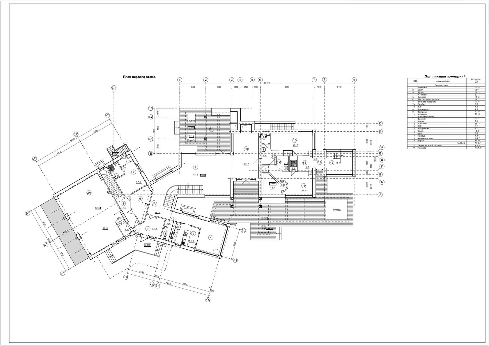
Проект готового двухэтажного дома - 292.15 м2
Проект летней кухни
Усадьба расположенная г. Лобня, мкрн. Луговая, ул. Фрунзе, д.19
Проект двухэтажного сферического дома - 227,69 м2
Проект реконструкции гостинной в г. Калуга
Концепция торгового центра на новорижском шоссе
Торгово - офисное здание расположенное на рублевском шоссе
КАНТРИ-КЛУБ «ВАЗУЗА»
Наименование объекта: КАНТРИ-КЛУБ «ВАЗУЗА» Заказчик: ОАО «ВЕЛЕС-КАПИТАЛ» Основные показатели: Площадь земельного участка – 8 га. |
Описание объекта: |
|
Садовое товарищество "Раздолье"
поселок «ЮРОВО»
Коттеджный поселок «ВЕЛИГОЖ – ПАРК»
Дачный поселок «ДОМ ТВОРЧЕСТВА МАЛЕЕВКА»
База отдыха расположена по адресу:
Истринскийрайон Московской области, недалеко от г. Истра.
Проект частного одноэтажного дома
Частный дом расположенный по адресу: Московская область,р-н Щелковский, ДНП «Оболдино - 1»
Частный жилой дом
Двух этажный частный дом для семьи из 4 человек
Двух этажный частный дом для семьи из 7 человек
Дизайн проект оформления фасадов загородного жилого дома в М.О., район Новой риги
Эскизный проект парка с общественными зонами отдыха «Дружба» в г. Ростове на Дону
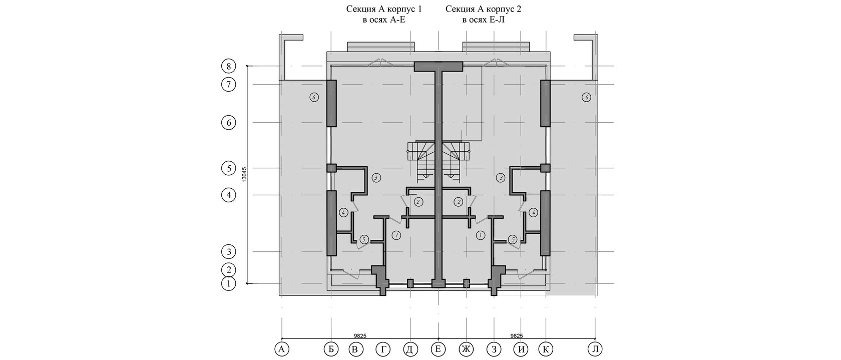
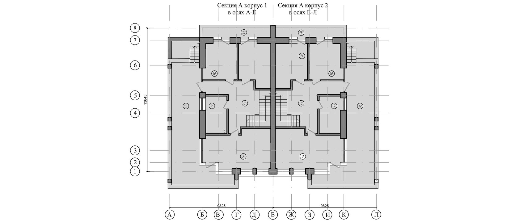
Русская интерпретация таун-хауса – сблокированные дома.
Эскизный проект парка с общественными зонами отдыха «Дружба» в г. Ростове на Дону
Торгового центра в г. Пятигорске по пр. Калинина
Мини гостиница расположенная в парке Цветник в городе Пятигорск, Ставропольского края
Жилой комплекс «Андерсен» Московская область
Торгового центра в г. Пятигорске по пр. Калинина
Проект глэмпинга, расположен в г. Кучугуры
Многоквартирный жилой дом, в существующей застройки по ул. Ленина, города Пятигорска, Ставропольского края
Складской комплекс расположен в ленинградской области
Архитектурный ландшафтный дизайн частного дома
Проект отеля расположен по адресу: Россия, Московская область, город Солнечногорск, ул. Вертлинская
Проект магазина расположен по адресу: Россия, Московская область, Солнечногорский район, КН: 50:09:0060736:750
Архитектурный ландшафтный дизайн частного дома расположенного на новой риге, поселок Новорижский
Проект общественных зданий в частном поселке
